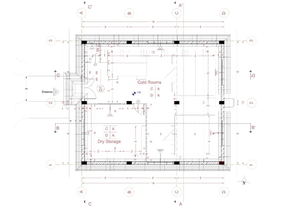
As-Built Cold Rooms
Project Description
The building is the cooling rooms of the clinic of the Directorate of Health in Homs – Baba Amr. A new building would be constructed the yard area north of the existing clinic , we designed many alternatives in order to choose the most sufficient one. In each one of them we were attained to consider all the sanitary conditions
Here is the chosen design alternative after consulting with the client and specialists concerned.The scheme demonstrate Dimensions, different layers for insulation and the constructional information as
Key Topics:
